Home_
Portfolio_
About_
Services_
Kontakt_
Home_
Portfolio_
About_
Services_
Kontakt_
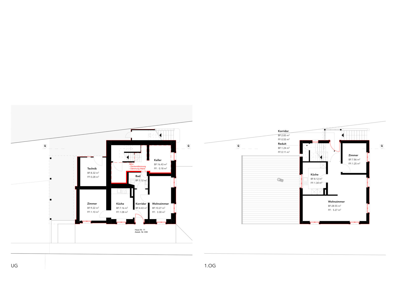
EFH Tann
Planung für Baueingabe
4
Previous
Next