EFH Oberägeri
Erarbeitet als Mitarbeiter bei Rinderknecht Architekturwerk GmbH
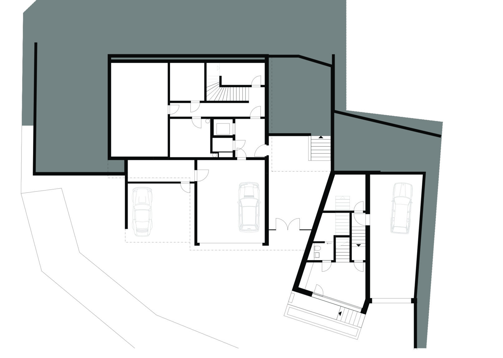
Hoch über dem Ägerisee, an einem steilen Hang und mit Aussicht über die Voralpen situiert, liegt das Einfamilienhaus „Stapelwerk“. Die Villa in Oberägeri umfasst zwei unabhängige Wohneinheiten: das 7½-Zimmer-Wohnhaus der Bauträgerschaft mit mehreren Aussenräumen, einer Doppelgarage und einem Carport sowie die 3½-Zimmer-Einliegerwohnung für einen Mieter ebenfalls mit attraktivem Aussenraum und eigener Doppelgarage.
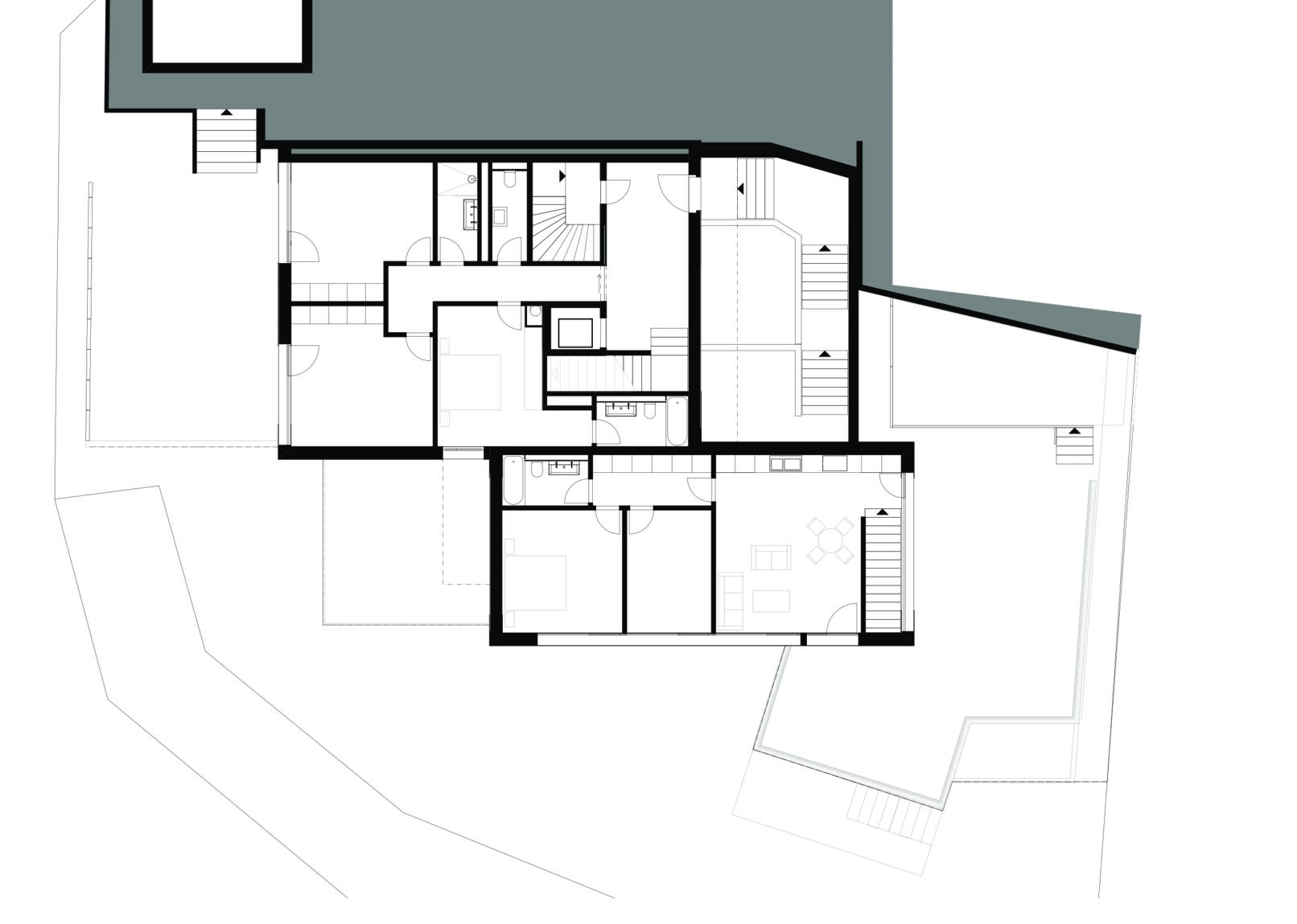
Die Gliederung unseres Projektes in Einzelvolumen ist von der Umgebung inspiriert und steht im Kontext mit den umliegenden Gebäuden, die aufgrund der Topographie als am Hang abgestufte Volumen in Erscheinung treten. Unsere Endvolumen sind zusammengesetzt aus insgesamt fünf flachen Quadern die jeweils, bis auf eine Ausnahme, um neunzig Grad zueinander gedreht sind und jeweils einen Wohnbereich gliedern und beinhalten. Durch die Anordnung und das Versetzen der Quader entstehen an den Enden, je nach Nutzung, öffentliche, private oder halbprivate Aussenräume. Trotz der ausserordentlichen Lage, war es nicht nur die Aussicht, die ausschlaggebend war für die Positionierung des Raumgefüges. Die Gestaltung der geeigneten Aussenräume vor den Volumen und die Positionierung der richtigen Raumnutzung am geeigneten Aussenraum waren ebenso wichtig. Die Seiten unserer Quader sind konzeptionell mit Fensterbändern versehen und akzentuieren dadurch die Schichtung und Ausrichtung der einzelnen Volumen.
Die Eingangssituation des Wohnhauses wird durch den nicht rechtwinklig angeordneten Quader gerahmt und durch das darüber liegende Volumen überdacht. Vom dadurch entstandenen Zwischenraum wird der Aufgang bis zur Haupttüre mit einer grosszügigen Treppe gestaltet. Der Zugang in zunehmend privatere Räumlichkeiten wird auch im Innern des Gebäudes über Treppen inszeniert und spürbar gemacht. Die Einliegerwohnung wird über einen eigenen Zugang erschlossen und nimmt das Konzept der Aussen- und Innenraumgestaltung des Wohnhauses auf.




















