EFH Geltwil
Erarbeitet als Mitarbeiter bei Rinderknecht Architekturwerk GmbH
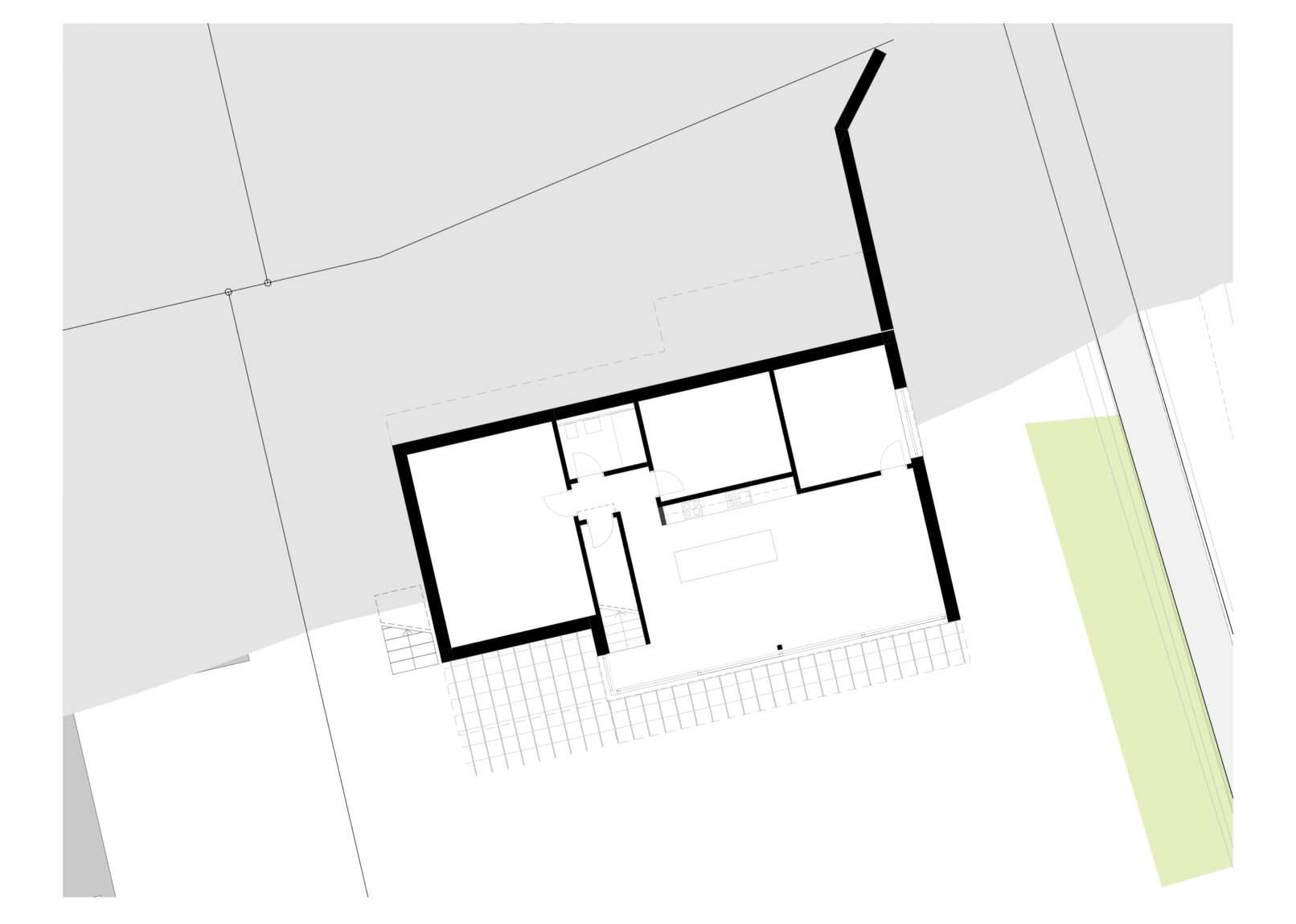
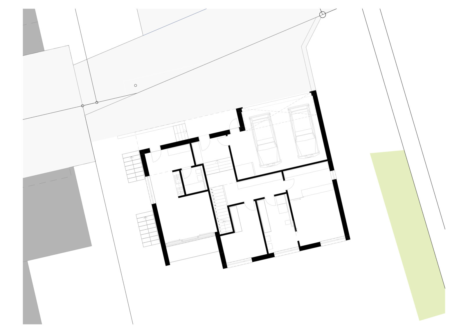
Am Hang, mit bester Aussicht auf das Knonaueramt, liegt das Einfamilienhaus „Staffelung“. Das Haus umfasst zwei unabhängige Wohneinheiten: das Haupthaus mit 4½ Zimmern, einem attraktiven Aussenraum und einer Doppelgarage sowie ein kleines 1-Zimmer-Studio mit Balkon.
Das Haus „A“ musste aufgrund des Gestaltungsplans und der Wünsche der Bauherren in ein bereits bebautes Konglomerat von Häusern eingefügt werden.
Im oberen Geschoss sind die privateren Räume situiert sowie das separat erschlossene Studio mit Balkon. Im unteren Geschoss befinden sich Küche und Wohnraum mit direktem Zugang zum weitläufigen Aussenraum.







